現代集團高級折扣店1號館:BetwinSpace Design
現代集團高級外貿商場1號館于京畿道南楊州市茶山新城開業,它是韓國第一家畫廊式的外貿商場,并在其中添加了諸如藝術畫廊及公園等文藝元素。它的英文名“SPACE1”也取自“購物(shopping)、娛樂(play)、藝術(Art)、文化(Culture)、體驗(experience)”的首字母,加上數字1以表達其唯一的獨特性。其整體的設計方向亦可理解為“每個人的假期去處”,它也成為了大眾假期休閑的場所。

本項目有一個引人注目的標志性立方形空間連接室內外。它在整個空間內創造了豐富的表達及景觀,每個區域通過“配對城市”的設計理念貫穿和呼應。形成了一個三維的立面并提供了有趣的空間感。此外,通過模糊品牌之間的邊界,它提供了多樣的動線以流暢地連接購物區及休息區,使訪客們得到豐富的體驗。

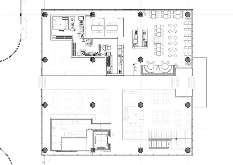
首層的空間的設計通過模仿室外地面材料以形成一個連接戶外花園及室內店鋪的過渡區。戶外遮陽構件及立方形空間結合造就了出色的天花板。餐廳、西點、咖啡廳及生活品牌匯集在一起,使得顧客得到明亮且醒目的體驗。位于首層前側的H餐廳擁有開放式廚房,顧客可以看見烹飪過程。 “天井花園”的設計理念打造了一個頂部有彩繪玻璃,中央有植物的溫室,為游客提供在戶外花園中用餐的體驗。



二層的休息區設有空洞,讓參觀者同時感受到豎直向的空間感和開放性,并對整個空間的體量有具象認知。在這個場館中,人們首先會路過一個與整個空間相協調的配飾集合店,以具有造型感的元素進行展示以通過不同的方式銷售各種配飾產品。它展示了一個設計語境:豐富的元素可以通過“變和弦”的設計理念結合在一起。設計團隊利用玻璃鋼、亞克力、金屬、切片單板、混凝土及磚瓦等各種質地的飾面材料,根據產品線設計了不同的細節及主題。




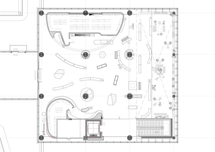
此外,在四樓的天花板上,燈光借用建筑單體精致的網格狀形態形成了從外部看來非常醒目的造型。所有內部的區域體現了巨大的空間感及粗獷的空間材料打造的精細質感。隨著每日的時光流轉,自然更迭,呈現獨一無二的狀態,本項目作為一個自然友好型建筑,其營造的溫暖氛圍令人經久不厭。通過在此體驗,平靜會化為訪客們日常生活的底色。


分享文章,請標明來源: http://m.56792.cn/xuni/1159.html 免責聲明: 圖片內容來源網絡,本網站對作品圖片的版權未作證實,對作品的原創性、真實性不作保證,也不承擔由此產生的法律責任。如對作品版權有疑議,請及時與我們電話聯系:400-035-0358 進行刪除.
 
			 
				    				 
				    				 
				    				 
				    				 
				    				 
				    				 
				    				