國外概念展廳設計圖片,藝術和設計效果的完美呈現
NOWóDKA位于柏林,是一家展示波蘭流行的高檔藝術和設計產品系列的概念店,
展示了當今柏林生動活潑的波蘭藝術和設計的精選商品。
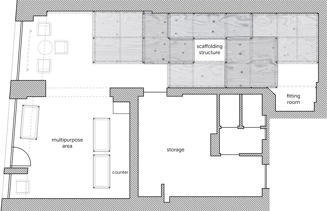
設計師希望將店鋪打造成大型“衣柜”,從而便產生了由支架梁制成的大型自支撐式結構。
暗示的一樣,店鋪打破了傳統的商品展示模式,在內部設計上自成風格。
KONTENT創造的主要概念為產品展示帶來了一種新的方法,
這種方法超出了標準壁掛式貨架的規范。
設計師希望商店成為您進入其中的衣櫥的代名詞。
其結果是一個大型的,由腳手架梁制成的自支撐結構,
正如商店名稱NOWóDKA所說,它遵循了這一規則,突破了室內設計的典型刻板印象。

前部包括柜臺,陳列柜和櫥窗等靈活元素,可根據需要自由組合,分離或移動。
鋼支撐梁在寬敞的后部垂直向支架將整個構架的重量傳到地面,構架下面的方形基板其平均分散重量的作用。
支架系統的分離組件將膠合板固定在不同的高度,產生了空間感。
平臺和頂部鋼絲網組成的微型空間讓顧客與產品產生互動。
儲物空間已分為兩個空間:可移動的正面和固定的實心背面。
前部空間由可移動元件組成,例如柜臺,櫥柜和商店櫥窗布置,可以根據商店的需要進行連接,斷開和移動。
鋼制腳手架梁在后部空間中形成了一個大型框架,從而充分利用了商店內部空間。
垂直管將結構的整個質量傳遞到地面,在那里它們放置在方形基板上以分散載荷。
腳手架系統的耦合器組件允許將膠合板放置在不同的可步行平臺高度上,從而在空間上發揮作用。
微小空間由內部平臺創建,并在屋頂上應用了擴展的金屬網,允許用戶與產品互動。

內部支架和主要鋼結構均涂成白色以突出產品,同時為未來的產品展示提供了中性背景。
支架系統既是衣服展架,也是陶器和首飾展柜的支撐架。
水平支架上裝有聚光燈和日光燈,光影投射到整個展廳地面。
這個富有美學價值的工業構架形成了有趣的空間,讓顧客在此后流連忘返,一時間忘記外部喧囂的街道。
支架為臨時結構,因此基本上沒有任何固定組件的內部布局可根據需要重新組合,
變成展示廳,T臺,展覽會,舞蹈室或工作坊。
支架結構的組裝也十分簡單,兩個人兩天即可完成。
內墻和主要鋼結構漆成白色以突出產品,為以后的展覽提供中性的背景。
腳手架裝置為衣服提供了滑軌,并為陳列陶瓷或珠寶的架子提供了支撐。
聚光燈和熒光燈固定在水平管上,用淺色織物隔開更衣室區域。
工業結構的美學價值形成了一個有趣的空間,人們可以在其中進入街道。
由于腳手架是一種臨時結構,因此墻上沒有固定元件。
靈活的布局可以重新配置并轉換成許多不同的用途,
例如:展覽,貓步,博覽會,舞池或車間空間,以符合商店的形象。




(本文由名思展示整理發布,名思設計公司為客戶提供各種專業 展廳設計 系統解決方案詳情)
分享文章,請標明來源: http://m.56792.cn/news/126.html



